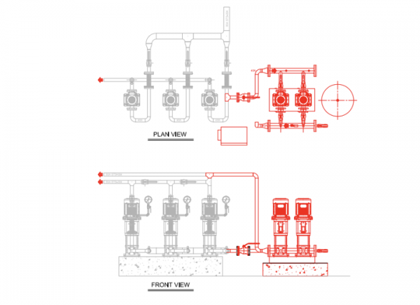
가압장 페이지 정보 작성자 한국펌프 댓글 0건 조회 70회 작성일 22-08-01 17:10 목록 본문 현장명 현충원 가압장 위치 서울특별시 동작구 설계일 2022년 07월 프로젝트 설명 현충원 가압장 이전글담수화 설비 22.08.01 다음글화장품 공장 - 수처리 22.08.01